Keskeytetty pesuallas modernille kylpyhuoneelle
Vanhoissa taloissa kylpyhuoneessa ei ole suurta neliötä. Tämän seurauksena omistajien täytyy paljastaa, kuinka kätevä on upottaa pesuallas. Yksi sopiva vaihtoehto voisi olla keskeytys.
Tämä vaihtoehto sopii paitsi pienille tiloille, tällöin LVI-laitteiden mitat eivät ole niin tärkeitä, koska ripustettu pesuallas on 100 cm ja pienoismalli, se on asennettu samalla tavalla.
Moderneista putkistosta ja sen asennusta koskevista säännöistä keskustelemme edelleen.

Tuotteiden lajikkeet
Modernit roikkuvat pesualtaat kylpyhuoneessa ovat edustettuina valtavassa valikoimassa. Valmistukseen käytetyn materiaalin lisäksi ne luokitellaan myös vertailupisteiden koon ja lukumäärän mukaan.
Mitä putkisto tehdään
- Keramiikan kapealla, jota edustaa suurimmaksi osaksi posliini ja keramiikka. Visuaalisesti uusi posliini-pesuallas ei eroa paljon fajansista, mutta posliinihinta on paljon korkeampi. Tämä johtuu tuotteen korkeasta laadusta ja posliinin pitkästä käyttöikästä. Tosiasia on, että keramiikka on ajan mittaan peitetty tuskin havaittavissa pienissä halkeamissa, kun taas posliini säilyttää alkuperäisen kauneutensa monta vuotta.

Vinkki: putkiston valitseminen, kiinnitä huomiota siihen, että iskunkestävä posliini tuottaa selkeämmän ja korkeamman äänen. Lisäksi aurinkoa sisältävän posliinin reunat loistavat. Faience mielessä huokoinen rakenne, tekee kuuro ääni ja ei loistaa läpi.
- Viime aikoina lasiputkistot ovat yleistyneet.. Lasituotteiden valmistustekniikka on jonkin verran yksinkertaisempaa, joten ne ovat markkinoilla suuressa valikoimassa. Tässä käytetään lasia ei ole yksinkertaista, kaikki tuotteet ovat kovettuneet, minkä seurauksena ne saavat mekaanista lujuutta ja kestävyyttä aggressiiviseen ympäristöön. Tällaisilla kuorilla voi olla kaikkein outoja värejä ja muotoja, joten ne ovat hyvin suosittuja.

- Luonnonkiven tuotteet kuuluvat eliitin kylpyhuonekalustoon. Perinteisesti tällaisten erien hinta on paljon keskimääräistä korkeampi. Käytettävän marmorin, travertiinin, graniitin tai oniksin valmistukseen. Useimmat mallit on suunniteltu asennettaviksi tilaviin huoneisiin, joissa on suuri neliö, joten kaikki kivijätteet tulevat yleensä työtasolle. On huomattava, että tällaisilla tuotteilla on riittävän suuri paino, eikä niitä suositella puhdistettaviksi aggressiivisilla pesuaineilla ja hioma-aineilla.

- Putkityöt tekokivestä eivät eroa visuaalisesti luonnollisesta materiaalista, mutta sen hinta on alhaisempi, ja se on kestävämpi mekaanisille ja kemiallisille vaikutuksille. Materiaali koostuu 80% luonnollisten mineraalien murusista, 20% komposiittihartseista toimii sideaineena. Luonnonkiven lisäksi komposiitti on raskasta.

- Emaloidut metallikuoret ovat poissa. Nyt käytetään yleensä kuparia tai pronssia. Ruostumatonta terästä ei käytännössä käytetä kylpyhuoneisiin, se on keittiössä. Värimetallien kuoret erottuvat erinomaisesta kestävyydestä, ne asennetaan usein sisustukseen tyyliteltyyn antiikkiin tai maahan. Suuri miinus on pelko mekaanisista vaurioista ja tahrojen muodostumisesta aggressiivisista pesuaineista.

Jousitusmallit
- Riippuvan pesualtaan asentaminen puhtaaseen muotoon, vain ankkuripultteihin, on merkityksellinen vain metallituotteille. Joissakin tapauksissa tällä tavalla on mahdollista asentaa pienikokoisia keraamisia nieluja. Luonnollisen tai keinotekoisen kivin osalta tämä vaihtoehto ei ole hyväksyttävissä suuressa painossa, koska tarvitaan lisää tukea.
- Raskat, volumetriset mallit on asennettu monimutkaiseen. Sen lisäksi, että se kiinnitetään seinään ankkurien avulla, lisätuki on varustettu metallikannattimilla. Sulujen kokoonpano voi olla erilainen. Klassisissa malleissa käytetään kahta sivutukea. Epäsäännöllisen muotoiset avantgardikuoret ripustetaan erityisiin kannattimiin, jotka on suunniteltu erikseen jokaiselle mallille.
- Ripustetut jalustat katsotaan erilliseksi suunnaksi. Itse asiassa se on pieni vaatekaappi, johon pohjana oleva pesuallas perustuu. Nyt se on yleisin ja nopeasti kehittyvä suunta. Käytännön hyötyjen lisäksi tällaisessa kaapissa voit piilottaa paljon hyödyllisiä asioita, jalusta on kaunis huonekalu. Jotkut mallit ovat jotain klassisen pesualtaan ja peilipöydän välillä.

Asennusvihjeitä
Riippuvan pesualtaan asennusohje on saatavilla lähes jokaiselle omistajalle, jolle rei'itin, ruuvimeisseli ja avainjoukko katsotaan tutuksi työkaluksi.
Tietysti on mahdollista asentaa putkistot yksin, mutta kokeneet käsityöläiset neuvovat silti houkutella toista avustajaa, eikä ole välttämätöntä, että hän ymmärtää asennuksen monimutkaisuudet, hänen tehtävänä on tukea uppoamista asennuksen aikana.
Tärkeää: ennen kuin asennat roikkuvan pesualtaan omin käsin, varmista, että sen seinän lujuus, johon asennus suoritetaan. Kaikki tällaiset rakenteet on asennettu vain monoliittisiin, edullisesti laakereihin, seiniin. Kipsilevyn pesuallas ei seiso.

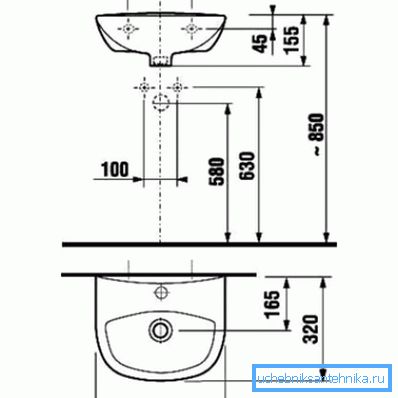
- Kaikki asennustyöt alkavat perinteisesti merkinnällä, kuten pesualtaalla, on suositeltavaa asentaa se 80 - 90 cm: n korkeudelle. Asiantuntijat sanovat, että optimaalinen taso on 850 mm, yläosassa. On parempi piirtää viiva linja tasolle, jotta myöhemmin ei ole vinoa.
- Kun viiva on piirretty, sinun on kiinnitettävä siihen kuori ja merkittävä tulevien kiinnitysten paikat. Se on täällä, tässä vaiheessa et häiritse ulkopuolista apua. Niin kauan kuin kumppani painaa rakennetta seinää vasten, asetat merkit, joihin reikiä porataan myöhemmin, ja kiinnikkeet tai ankkurit asennetaan.
- Siirry seuraavaksi porausreikiin. On parempi käyttää sähköporaa, jossa on rei'itys. Ja portaiden porausvaiheessa poran pitäisi toimia normaalisti, ja kun laatta on valmis, sinun täytyy vaihtaa lyönti. Jos käynnistät perforointitoiminnon välittömästi, laatta voi murtua tai jopa purkaa.

Vihje: laatikossa on kiinteä ja melko liukas pinta, joten jotta se voidaan porata tarkasti oikeaan paikkaan, sinun on ensin kiinnitettävä rakennuslevy laatikkoon, ja on suositeltavaa merkitä hieman pistorasia.
- Kun reiät ovat valmiita, niihin kiinnitetään tyynyt ja kiinnitysruuvit ruuvataan kiinni. Nastan pituuden on oltava vähintään 15 mm pidempi kuin seinäpaksuus, jotta voit kiinnittää tiiviisti tiivisteen ja ruuvata mutterin kiinni.
- Seuraavaksi asennetaan pesuallashana ja tyhjennysputket. Tosiasia on, että sekoitin on asennettu alhaalta, siinä on erikoisnastat, johon on kiinnitetty puolipyöreä aluslevy, jossa on kumitiiviste, ja kaikki tämä kiinnitetään mutterilla.

- Sekoittimen alareuna on parempi jättää silikonilla tai muilla tiivisteillä. Jos tyhjennysliittimet voidaan asentaa pesualtaan asennuksen jälkeen, kiinteän pesuallasosan sekoitin on asennettava pohjasta ja pääosin kosketukseen, mikä on hyvin vaikeaa.
- Viimeisessä vaiheessa kuori asetetaan nastoihin, minkä jälkeen tiivisteet asennetaan samaan tapiin ja mutterit ruuvataan. Huomaa, että mutterit on kiristettävä vuorotellen ja vähitellen, jotta muotoilu ei käänny. Kosketuspaikka seinään, erityisesti yläosaan, tulee käsitellä millä tahansa tiivisteellä.

Tämän artikkelin video näyttää uppoamisen asennusalgoritmin.
johtopäätös
Kuten näette, roikkuva kylpyhuoneen pesuallas on melko helppo asentaa. Lähes kaikki nielujen mallit on asennettu samalla tavalla, ainoa ero on kiinnityspisteiden lukumäärässä ja nastojen tai ankkuripulttien paksuudessa.
